Site internet français
03 23 53 55 92
SILENT K30 T5.5 – 500VG
En stock
Garantie Satisfait ou Remboursé
Expédition sous 48 / 72h
Livraison gratuite à partir de 90€
4x sans frais
Compresseur à piston insonorisé 5,5 CV à marche lente pour utilisation industrielle avec réservoir vertical galvanisé 500 litres. Tête K30 aluminium, cylindres fonte bi-étagés.
Caractéristiques :
Information Compresseur :
Marque : NUAIR
Modèle tête : K30
Type de cynlindres : Bi-étagé
Puissance : 5,5 CV / 4kW
Capacité réservoir : 500 litres
Volume engendré : 44 m3/h
Pression : 10 bar
Tension : 400 V/50Hz
Vitesse de rotation : 800 tr/min
Niveau sonore : 65 dB(A)
Dimensions : 850 x 620 x 1100 mm
Poids : 168 Kg
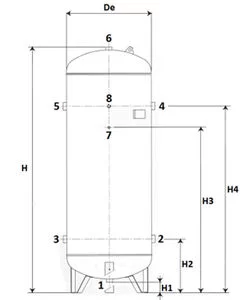
Information réservoir 500L (voir photo) :
Capacité : 500 Litres
Dimension : (De) 650 mm, (H) 1850 mm, (H1) 170 mm, (H2) 482 mm, (H3) 1285 mm, (H4) 1485mm
Raccords : 1 (orifice de purge),2 (arrivée ou départ air ou bouchon),3 (arrivée ou départ air ou bouchon),4 (arrivée ou départ air ou bouchon),5 (arrivée ou départ air ou bouchon),6 (orifice point haut) : 2″
7 (orifice pour manomètre) : 3/8″
8 (orifice pour soupape de sûreté) : 3/4″
Poids : 125 Kg
Option (voir plus haut) :
Purgeur de condensat 230 V MONO
Pour information :
Le purgeur de condensat sert à évacuer les condensats (mélange d’huile, d’eau et d’impuretés) du réservoir d’air du compresseur. Si ce condensat n’est pas évacué il va dégrader la qualité de l’air et endommager les outils ou les équipements utilisés avec le compresseur.
Ainsi avec sa cuve de 500 litres, il assure une réserve d’air importante. Vous gagnez en autonomie et réduisez les arrêts pour rechargement. Idéal pour les ateliers, les garages ou les environnements industriels.
Ce compresseur est aussi insonorisé. Il fonctionne en silence, même à plein régime. Vous travaillez dans de meilleures conditions, sans bruit gênant. Ainsi c’est un vrai plus pour le confort quotidien.
Le réservoir galvanisé résiste à la rouille. Il supporte l’humidité et dure plus longtemps. De plus, le piston lubrifié offre une performance régulière et une longue durée de vie.
Son capot de protection limite les risques de choc et protège les composants internes. Ainsi l’entretien reste simple et rapide. Compresseur d’air insonorisé 5.5 CV 500 L galvanisé NUAIR
En résumé, le NUAIR 5,5 CV 500 L galvanisé est un compresseur puissant, silencieux et solide. Ainsi il s’adapte à tous vos travaux d’air comprimé. Il vous offre performance, sécurité et tranquillité.
104200CGNU



